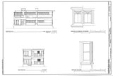
Frank Lloyd Wright's "System Built" 2-story model - 1916
- Building Name: American System Built Homes
- Designer/Architect: Frank Lloyd Wright
- Date of construction: 1916
- Location: Milwaukie, Wisconsin
- Style: Prairie Style
- Site: Flat to moderate slope
- Maximum dimensions: apx. 27’x48’
- Number of sheets: 4 sheets measuring 24”x36”
Sheet List
- Cover sheet, perspective, Notes
- Basement, First and Second Floor Plans, 1/4”=1’-0”
- 4 Elevations, 1/4”=1’-0”
- 2 Sections and Details, various scales
This listing is for prints on 20# bond paper. It is for architectural drawings only. Any photos shown in the description are informational only and not included in this package.
Frank Lloyd Wright, father of the Prairie School of design, was always interested in ways to reduce the cost of construction and make great architecture more affordable. With the “System Built” concept he explored the possibility of creating a kit of parts that could be assembled into a variety of different house plans. Only a few of these houses were built. This house, in Milwaukie, Wisconsin, is an excellent example. Built originally as a duplex it was later remodeled into a single family home. These drawings reflect that remodeling.
The house is a 2-story design, built over a raised basement which contains utilities. The first floor consists of a Living Room, Dining Room and Kitchen with a breakfast area. There is also a WC on this level. The second floor contains a bedroom/bath suite, 2 bedrooms, a sleeping porch and a bathroom. This is a very efficient plan, well suited for a narrow lot in a city. The skillful arrangement of windows brings lots of natural light to all the rooms.
SHIPPING: Your drawings are shipped to you, rolled, not folded, in a Priority Mail tube. This eBay listing includes architectural prints ONLY. Any photos shown in the description are for information only and are NOT included in your purchase. Thanks.
IF YOU ARE PLANNING TO BUILD: These plans are not complete architectural drawings as might be required by your local permitting agency and do not contain all the structural, waterproofing and other details and information necessary for construction. But your local builder or architect should be able to adapt these drawings and add to them as necessary. What they do provide is accurate design information about a REAL historic house, not a pseudo-historic tract house as you will find in the house plan magazines on your supermarket shelf
INTERNATIONAL BUYERS PLEASE NOTE: Orders shipped to addresses outside the USA may be subject to customs duties at their destination. The buyer is responsible for any such duties.
The original drawings from which these dimensionally accurate scans were made are kept at the Historic American Building Survey, in the Library of Congress. (WR004)
 
           
           
           
           
           
           
               
               
               
               
               
               
       
      