Prestwould Plantation - iconic Southern Style home - 1797
- Designer/Architect Unknown
- Date of construction 1797
- Location Mecklenburg County, Virginia
- Style Colonial
- Number of sheets 23 sheets measuring 18” x 24”
Sheet List
- Cover sheet, information, Site Plan, Notes
- 3 Sheets of Floor Plans, 3/16”=1’-0”
- Roof Plan, 3/16”=1’-0”
- 4 Sheets of Elevations, 3/16”=1’-0”
- Section, 3/16”=1’-0”
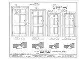
- 7 Sheets of Details, various scales
- 6 Sheets of Plans, Elevations and Details of outbuildings and cottages, various scales
This listing is for prints on 20# bond paper. It is for architectural drawings only. Any photos shown in the description are informational only and not included in this package.
Prestwould Plantation was built by Sir Peyton Skipwith VII Baronet, on a site that is now by a manmade lake but originally presented a view of the Roanoke River Valley. The plantation house is the center of a large estate and the drawings include many of the outbuildings and cottages of estate workers. This assembly represents a strikingly complete grouping of homogeneous buildings, all built around the time of the completion on the main house in 1797.
The original drawings were beautifully delineated in 1974. This extensive set of 23 drawing sheets includes a site plan with notes, 3 floor plans, a roof plan, 4 exterior elevations, a section, and 7 pages of beautifully drawn details of windows, doors and trimwork. In addition there are 6 more pages of outbuildings, including several cottages, a barn, a well house and a delightful octagonal “Summer House”. The original drawings rest in the Library of Congress. As a work of art these prints are worth purchasing in their own right. For those of you interested in building a historically inspired house, these plans offer an excellent starting point. The several cottage designs would be adaptable to guest houses. The main house itself consists of two stories over a full basement. The main floor has a large entry/stair hall with 5 large rooms grouped around it. It would be a simple matter to convert one of these rooms to a bed/bath suite. The second floor could easily accommodate an additional 4 bedrooms and 2 bathrooms. Though without dormers, the attic is high enough that it could provide additional living space. These plans are ideal for a flat or slightly sloping site. This house would be comfortable in a suburban or country setting. Including the 2 large porches, this house has outside dimensions of approximately 67’ x 77’.
Please visit my other listings for many other drawings I am offering. I have house plans in wide variety of styles including Colonial, Craftsman, and Prairie, as well as plans of architects such as Frank Lloyd Wright, Irving Gill, Purcell & Elmslie and others.
SHIPPING: Your drawings are shipped to you, rolled, not folded, in a Priority Mail tube. This listing includes architectural prints ONLY. Any photos shown in the description are for information only and are NOT included in your purchase. For information about the photos please send me a message. Thanks.
IF YOU ARE PLANNING TO BUILD: These plans are not complete architectural drawings as might be required by your local permitting agency and do not contain all the structural, waterproofing and other details and information necessary for construction. But your local builder or architect should be able to adapt these drawings and add to them as necessary. What they do provide is accurate design information about a REAL historic house, not a pseudo-historic tract house as you will find in the house plan magazines on your supermarket shelf.
INTERNATIONAL BUYERS PLEASE NOTE: Orders shipped to addresses outside the USA may be subject to customs duties at their destination. The buyer is responsible for any such duties.
The original drawings from which these dimensionally accurate scans were made are kept at the Historic American Building Survey, in the Library of Congress.
(CO010)
 
           
           
           
           
           
           
           
           
           
           
           
           
           
           
           
           
           
           
           
           
           
           
           
           
               
               
               
               
               
               
               
               
               
               
               
               
               
               
               
               
               
               
               
               
               
               
               
               
       
      